2019年6月17日,位于上海塘桥的国家儿童医学中心新大楼正式投入运营。据悉,这是上海市“十三五”期间最大的医疗建筑单体。该新大楼的启用,不仅极大提高了该院医疗服务的水平,同时在儿童心脏外科等优势学科的基础上,进一步挑战大脑神经等高难度复杂手术,造福了广大儿童。本篇主要分享了国家儿童医学中心(上海)手术室的建设亮点、难点及解决方案。

▲ 国家儿童医学中心外观
2017年,上海交通大学医学院附属上海儿童医学中心获批成为国家儿童医学中心主体建设单位之一,与以首都医科大学附属北京儿童医院为主体的国家儿童医学中心(北京),共同构成国家儿童医学中心,分别在南北区域发挥辐射带动作用

▲ 国家儿童医学中心夜景图
上海交通大学医学院附属上海儿童医学中心由上海市人民政府与世界健康基金会于20世纪90年代立项建设,1998年正式建成对外开放。投入使用以后医院床位数将扩增至1000张,预计每日门诊量将达到7000人次以上,住院手术量超过70例。
江苏达实久信医疗科技有限公司参与承建了上海儿童医学中心的新大楼。新大楼启用后不仅极大提高了该院医疗服务的水平,同时在儿童心脏外科等优势学科的基础上,进一步挑战了大脑神经等高难度复杂手术,造福了广大儿童。
一、手术室项目概况
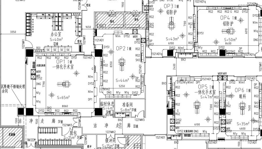
江苏达实久信医疗科技有限公司承建的项目包含上海儿童医学中心三层手术室、四层中心供应室。按院方要求:手术部共设计Ⅰ级手术室共计8间,其中一体化手术室2间,骨科铅防护手术室2间,眼科手术室1间;这里还有一间是全新的玻璃手术室。
Ⅱ级手术室7间,其中正负压手术室1间,骨科铅防护手术室2间,骨科铅防护一体化手术室1间。手术部设计了Ⅲ级洁净内走廊及其配套辅房(百级手术室区域)、Ⅳ级洁净内走廊及其配套辅房、Ⅳ级洁净外走廊及其辅房。
四层中心供应设置Ⅲ级无菌区、Ⅳ级灭菌区、非净化污洗区等;设备机房位于四层。三层手术部建筑面积约2500㎡;四层中心供应建筑面积约600㎡。设备机房位于四层,设备机房建筑面积约1000㎡。

▲ 上海儿童医学中心手术室平面图(部分)
其中手术室OP1墙板采用了玻璃材质,其他手术室墙顶板采用了医疗卫生型钢板;洁净辅房区域、中心供应净化区域采用了无机预涂板;中心供应污洗区及灭菌区采用了不锈钢墙板;手术室采用抗静电橡胶地材,其他区域采用抗静电PVC地材;湿区为瓷砖地面。
所有手术室均配备了中央情报面板,针对手术室空气环境、灯光控制、通讯、医疗信息、手术室信息进行了集中显示及控制。

▲ 上海儿童医学中心手术室案例 二、手术室项目亮点 01:玻璃复合手术室 手术室OP1墙板采用钢化玻璃材质,手术室墙板由地面往上840mm区域为拉丝不锈钢墙板,840mm至吊顶高度墙板为钢化玻璃墙板,C面整体为3D彩喷图案钢化玻璃墙板。 医疗卫生型钢板加医用专用玻璃的墙板表面平滑无气孔、有防撞、易清洁、美观、降低回声的优势,冷色调不容易产生视觉疲劳。 手术室墙面利用专用龙骨挂件、连接件,安装简单、高效,易检修、易扩展。本项目采用最新 工厂预制化生产技术,生产出手术室模块化配件,现场组装,并根据医院现场条件进行优化组合。

▲ 医用专用玻璃墙板

▲ 富有童趣的装配式手术室
为了营造出一种温馨可爱的氛围,本项目选出富有童趣的图案,用玻璃图案幕墙结合丰富的色彩缓解小朋友的紧张心情。为医护人员和病患创造良好的工作和医疗的环境,减轻了医护人员的工作压力,给就诊的小患者们提供了轻松的治疗环境,并让广大医护人员时刻警醒自己,手术对象是儿童,需要付出加倍的耐心与细心。
02:液晶中央控制面板

▲ 液晶中央控制面板
手术室配置的液晶中央控制面板集合了娱乐和医疗的功能。医护人员点动屏幕,不仅可以查阅检查报告,还可以点歌、播放音乐;也可以调节灯光,来个手术灯光秀。这块神奇的屏幕,让手术室显得智能有趣,极大地提高医生的工作效率,缓解了小患者们的紧张情绪。
03:超人性化设计

▲▲ 独特的大圆弧设计 根据净化的相关要求,并基于美学考虑,手术室夹角处采用R300的大圆弧过渡,彻底消除了卫生死角,还满足了净化气流的空气流动的特性,整体效果更显美观大方。 三、手术室项目的三大难点及解决方案 01:手术室吊顶高度受限,BIM技术来优化 该项目在施工过程中受建筑层高及四层中心供应降板区域的影响,手术室吊顶高度受限,OP1~OP5手术室吊顶高度原设计仅考虑2.8m。 笔者团队进行了全方位的数据勘测,运用BIM技术优化管路铺设,并对送风天花结构进行了重新设计,将OP1~OP3手术室吊顶高度抬高至2.9m,其他手术室吊顶高度做到了3m。 02:玻璃手术室视觉景深效果要凸显,十几种方案优中选优

▲ 手术室墙角处理方式
玻璃手术室,如何保证玻璃墙面图案的完整性及延展性,如何保证视觉上的景深效果?笔者团队专门制作了十多张效果图,对各种方案进行对比,最后采用的方案是手术室墙角采用了直角拼缝方式。另一方面,墙面图案背光明暗有别,中间亮两边暗,上边亮下边暗,最后呈现的效果十分完美。
03:手术室类型和设备厂家难确定,主动出击做沟通

▲ 一体化手术室
一体化手术室在设计施工过程中,因暂时未确认手术室类型及设备厂家,导致施工过程中预留管线、端口进行了多次调整。通过数次沟通谋和,最终才确定了手术室类型和设备厂家,从而确定了预留管线和端口的位置。
结束语
国家儿童医学中心的建设对多元化、多层次的健康服务具有积极意义,该医院的数字化手术部为医院的医疗服务带来了强有力的竞争优势。未来,k8凯发一触即发将继续专注于医疗专项技术的研发与创新,不断提高手术室的信息化、智能化水平,争取将手术室建设做到极致,助力实施“健康中国”战略。